
Suitable for decks,
patios, balconies & more
Minimalised obstruction of views
Tested rigorously to
British Standards
Virtually maintenance-free
Fortitude Contemplation Glass and Post Balustrade
Fortitude Traditional Contemplation is a modern and superior glass and post balustrade solution. This minimalist system provides a secure and durable balustrade for decks, patios, balconies and more, whilst maximising the views beyond.
Contemplation offers similar flexibility to Fortitude Traditional railings, whilst pairing stylish toughened glass with steel posts and glass clamps.
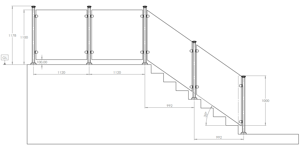
Glass panels are available in a range of widths, whilst the fixed 1024mm height provides a standard 1100mm balustrade on level surfaces. The system uses matching aluminium glass clamps suitable for 10mm thick glass panels.
Simple, stylish and effective…
Fortitude Contemplation Metre Rate Guide Pricing
To make life just that little easier, we’ve create pre-defined kits to help you price your Fortitude Contemplation project on a per-metre basis.
All prices shown are inclusive of 10mm glass.

Panels
The Fortitude Contemplation system utilises the strength of toughened glass panels. To ensure this system works effectively in spaces of most dimensions, glass panels are offered in a range of pre-cut widths, all to 1024mm to work perfectly with the system.
10mm thick toughened panels provide substantial rigidity in the balustrade for domestic application. Standard clear panels are stocked at between 100mm and 1100mm widths. Panels for inclines (for use on stairs and ramps) can be made to order.
Stocked glass panels from 100mm to 1100mm widths, all 1024mm high to provide 1100mm high balustrade on flat surfaces.
Made-to-order glass panels can be orders using our glass selector tool.
| Width (mm) | Height (mm) | Stock Code |
|---|---|---|
| 100 | 1024 |
1855101001024
|
| 200 | 1024 | 1855102001024 |
| 300 | 1024 | 1855103001024 |
| 400 | 1024 | 1855104001024 |
| 500 | 1024 | 1855105001024 |
| 600 | 1024 | 1855106001024 |
| 700 | 1024 | 1855107001024 |
| 800 | 1024 | 1855108001024 |
| 900 | 1024 | 1855109001024 |
| 1000 | 1024 | 18551010001024 |
| 1100 | 1024 | 18551011001024 |
Posts
Fortitude Contemplation Application Scenarios and Dimensions

Please note that post centres will vary based on the width of the glass. Maximum post centres for this system should not exceed 1120mm.
Pre-drilled Posts
Posts are 2.3mm thick and supplied with the base cover plate and protective cap. Available in Black Sand finish only.
Pre-drilled 8mm holes for use with aluminium glass clamps; 1805401FBS. Fixing bolts available for post; 5002HCS1075

Pre-drilled Bolt Down 1155mm End Posts
with Aluminium Glass Clamps
Available in 50mm and 75mm widths
| Material | Thickness | Code |
|---|---|---|
| Steel | 50mm | 64PB76150B |
| Steel | 75mm | 64PB76175B |

Pre-drilled Bolt Down 1155mm Mid Posts
with Aluminium Glass Clamps
Available in 50mm and 75mm widths
| Material | Thickness | Code |
|---|---|---|
| Steel | 50mm | 64PB76250B |
| Steel | 75mm | 64PB76275B |

Pre-drilled Bolt Down 1155mm Corner Posts
with Aluminium Glass Clamps
Available in 50mm and 75mm widths
| Material | Thickness | Code |
|---|---|---|
| Steel | 50mm | 64PB76350B |
| Steel | 75mm | 64PB76375B |
Side-fix-in Posts
These posts do not come with pre-drilled holes for glass clamps due to the variability of height. Premium powder-coated aluminium posts complete with fascia bracket and fixing screws. All posts walls are 3mm thick, available in 50mm and 75mm widths. Brackets only suitable for 50mm posts (75mm can bolt direct to fascia). Holes suitable for which ever clamps you choose to use, will need to be drilled and tapped on site or prior to installation.
Concrete-in Posts
Available in both 50mm and 75mm widths, with a nominal wall thickness of 2.3mm , precisely 407mm of the post should be below ground level to offer optimal support. Post concrete sold separately. Supplied with protective cap.

Pre-assembled bolt-down posts with glass clamps
Glass clamps
Aluminium Glass Clamps
For 10mm thick panels
Our pre-assembled bolt-down posts come supplied with the relevant number of cast aluminium glass clamps, suitable for 10mm glass. For all other posts, please purchase 1805401FBS – supplied in packs of 4 with rubbers & M8 bolts.

Post centre-to-glass measurements
The minimum and maximum distance of the positioning of the glass panel from a post centre.

Post caps
Technical Drawings and Datasheets














